工作室
项目
产品
借光笔记
招聘
联系我们
中文
|
EN
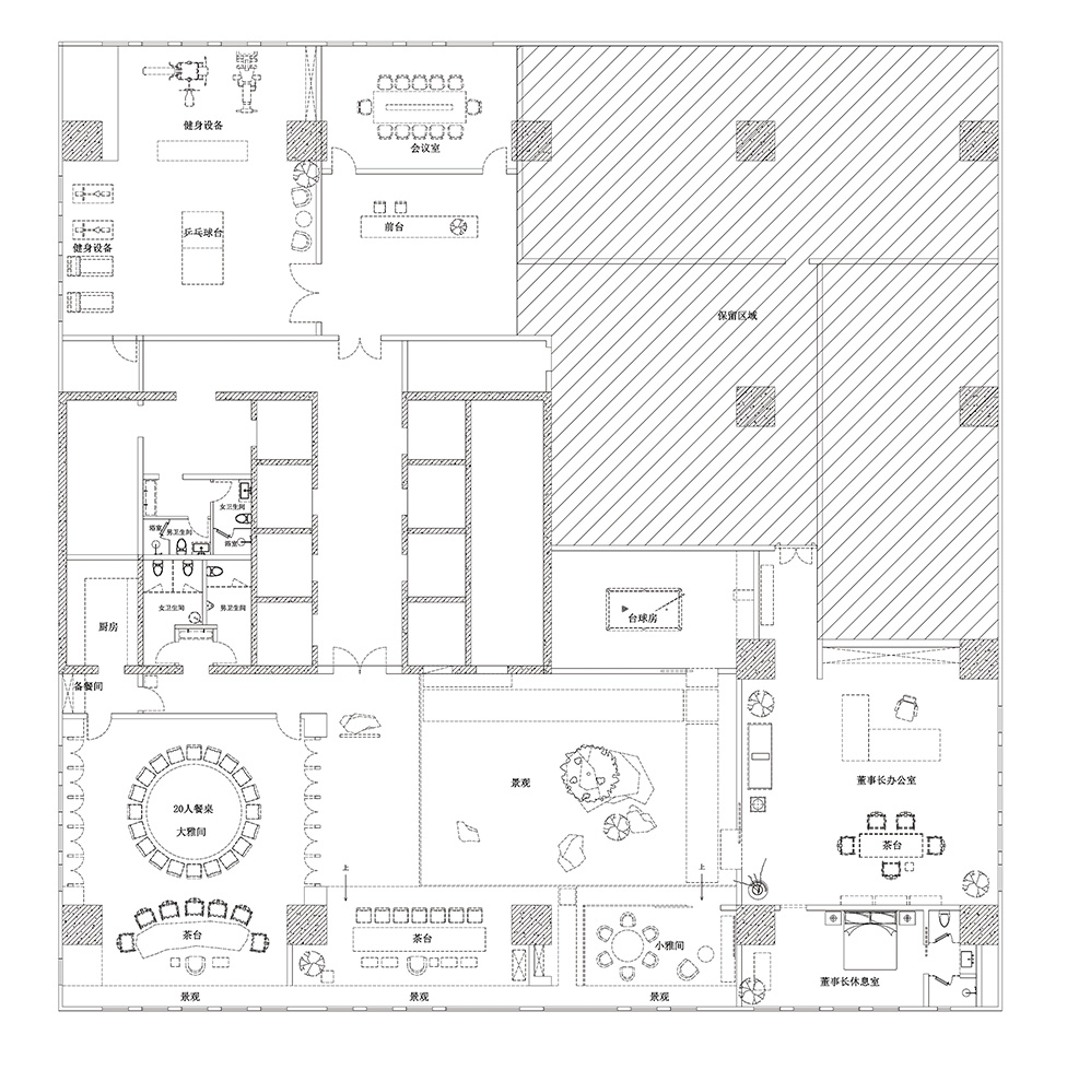
鄂尔多斯企业会所(接待空间)
项目名称:鄂尔多斯企业会所(接待空间)
设计时间:2022年10月
项目地址:内蒙古.鄂尔多斯
施工时间:待定
项目规模:722㎡
东方的空间里有一种隐性和内向的气质。
空间对人最亲密而深刻的影响,
源于心性的潜移默化,
在时间的循环、空间的卧游中,
看待人、自然、自我的眼光发生了敏感细腻的生长。
0756-8508984
18928076706
点击咨询